Affordable elegance, architectural design provides undeniable appeal to this house and land package by Bird Built Limited in the up-and-coming community of Beachgrove.
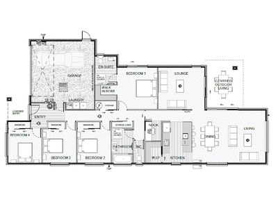
Set upon a TC2 Rib raft foundation for peace of mind, the layout is thoughtfully arranged to accommodate modern lifestyles, with a single level configuration featuring contemporary comforts, including plush carpets, LED lighting and double glazing.
Crisp hues and timber tones will work harmoniously in the kitchen, which will come equipped with stone benchtops, an island bench and accompanying scullery armed with ample storage. This open-plan space will also incorporate the dining area and lounge, which maintains the emphasis on a comfortable lifestyle with effortless access to a set of sun-saturated patios.
All four bedrooms will include built-in wardrobes, with the master being a deluxe retreat featuring a walk-in wardrobe and ensuite. An internal access double garage, family bathroom, and linen cupboard will round out the highly functional floor plan.
An easy commute from the central city, via the Northern Corridor Motorway, Beachgrove provides a desirable lifestyle, positioned away from the bustle and enjoying easy access to local beaches. A local childcare centre and easy access to neighbouring Kaiapoi North Primary School makes this a family favourite, with shops, eateries and amenities only 900m away in Kaiapois town centre.
*Images shown are an artist impression only all colours, materials & planting shown are subject to the final contract agreement.
Contact me today for more information.
Download Property Files: www.agentsend.com/LOT145BEACHGROVE









